欢迎来到上海装潢网
咨询热线:400-118-8580
装修公司入驻
建材商入驻
下载APP
微信分享
首页
网站公告
装修预约
装修预约
工程招标
合同报价审核
监理服务
培训报名
空气检测
装修公司
资质查询
企业动态
装修团队
新闻中心
短视频
精英访谈
装修问答
装修投诉
投诉列表
投诉提交
企业名录
红黑榜单
我要监理
我要监理
工地播报
监理验收
下载中心
文档中心
报价下载
合同下载
验收标准
施工规范
逾期赔偿参照表
建材服务
建材商家
商品列表
上海沪新居建筑装饰工程有限公司
网络监督单位
质保金:
10万
口碑值:
55289
全站排名:
第
位
区域:
浦东新区
地址:
浦东新区
电话:
13122585559
会员订单:
24单
浏览量:
4464
微信分享
在线预约
店铺首页
公司动态
工地播报
企业证书
服务团队
经典案例
在建工地
优惠活动
联系我们
上海沪新居建筑装饰工程有限公司
网络监督单位
预约电话:
13122585559
在线:
2026-04-24
(6小时前)
店铺首页
公司动态
工地播报
企业证书
服务团队
经典案例
优惠活动
联系我们
预约装修
会员订单
24条
预约
预约提交成功
客服人员将会与您联系,请保持手机畅通
查询热线
400-118-8580
上海沪新居建筑装饰工程有限公司
在建工地
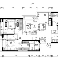
御峰雅苑翻新改造
在建工地
项目名称:
御峰雅苑翻新改造
区域:
浙江嘉兴嘉善县
开工日期:
2025-04-29
竣工日期:
2025-08-30
面积:
120㎡
预算:
10万元
户型:
小户型
风格:
现代风格
施工单位:
上海沪新居建筑装饰工程有限公司
团队
缪勇
项目总监
吕娟
采购主任
曹师傅
水电工
冒师傅
木工
赵师傅
瓦工
蒋师傅
油漆工
林凯
网络运营
李春莲
主案设计师
林锋
运营总监
施工情况
准备阶段
预算图纸准备
历经多轮沟通,理想家装方案终于敲定。签约时刻,信任与期待满溢。砸金蛋环节惊喜连连,幸运奖品为喜悦加码。随着开工仪式上金锤落下,梦想家园的建造正式启程,我们定不负所托,精心雕琢每一处细节。
拆改阶段
土建拆墙改造
装修拆除阶段要注意:先断水断电,做好防护。承重墙、梁柱不能拆,会影响建筑结构安全。拆除垃圾及时清理,保持现场整洁,同时注意避免噪音、粉尘扰民 。
水电阶段
水电隐蔽施工
水电隐蔽是装修中的重要施工阶段,电气线管的埋设深度、横平竖直、是否破坏原有建筑的结构安全,都是我们重点关注和验收的控制要点,这也是装修两段制验收管理必须要做到关键工作。
泥木阶段
木作泥瓦施工
泥工需保证基层处理平整干净,瓷砖铺贴留缝防开裂,做好卫生间等区域防水并进行闭水试验。木工要严格把控木材质量,确保龙骨安装牢固,门窗套垂直平整、与墙体结合紧密,避免后期出现变形、下沉等问题。
油漆阶段
墙面油漆施工
油漆 1.铲除原白灰墙面铲除毛坯房原来的白灰墙 2.墙面界面剂使用零污染丙烯酸蓝钻界面剂处理 3.结构石膏粗找平保证墙面平整,不易开裂发潮 4.第一次腻子精细找平使墙面不至于发潮、开裂、掉粉,第二次腻子精细找平使墙面更加平整封闭性更好墙面砂纸打磨保证墙面平整整洁,方便后期上乳胶漆 5.抗碱底漆增加漆面丰满度,提高抗碱性,增强防腐功能等 6.第一层面漆,第二层面漆进行双重防护加固墙面
竣工阶段
家具软装安装
经过3个月的周期 我们终于迎来了最美好的时刻 业主一天起码去三趟工地 整个过程业主非常细心在乎每个细节 也看得出对房子的成品的寄望 我们也不负所望 设计师过程中非常耐心 项目经理也是认真负责 有问题及时反馈 一个好的作品 需要多方的努力协调 沟通 交流 触碰才能慢慢成就 愿往后业主万事如意 一帆风顺。
企业信息
立即预约