欢迎来到上海装潢网
咨询热线:400-118-8580
装修公司入驻
建材商入驻
下载APP
微信分享
首页
网站公告
装修预约
装修预约
工程招标
合同报价审核
监理服务
培训报名
空气检测
装修公司
资质查询
企业动态
装修团队
新闻中心
短视频
精英访谈
装修问答
装修投诉
我要投诉
企业名录
红黑榜单
我要监理
我要监理
工地播报
下载中心
文档中心
报价下载
合同下载
验收标准
施工规范
逾期赔偿参照表
建材服务
建材商家
商品列表
上海先荣建筑集团有限公司
网络监督单位
质保金:
20万
口碑值:
38240
全站排名:
第
位
区域:
黄浦区
地址:
上海市黄浦区陆家浜路976号2108室
电话:
400-118-8580
会员订单:
118单
浏览量:
17319
微信分享
在线预约
店铺首页
公司动态
工地播报
企业证书
服务团队
经典案例
在建工地
优惠活动
联系我们
上海先荣建筑集团有限公司
网络监督单位
预约电话:
400-118-8580
在线:
2025-05-28
(半年前)
店铺首页
公司动态
工地播报
企业证书
服务团队
经典案例
优惠活动
联系我们
预约装修
会员订单
118条
预约
预约提交成功
客服人员将会与您联系,请保持手机畅通
查询热线
400-118-8580
上海先荣建筑集团有限公司
在建工地
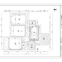
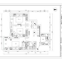
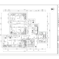
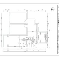
上海徐汇区杜鹃园
在建工地
项目名称:
上海徐汇区杜鹃园
区域:
上海上海徐汇区
开工日期:
2022-06-06
竣工日期:
2022-08-01
面积:
76㎡
预算:
23万元
户型:
小户型
风格:
现代风格
施工单位:
上海先荣建筑集团有限公司
团队
Meeks Liu
督导
邱祖军
项目经理
施工情况
准备阶段
预算图纸准备
前期设计师初步了解业主装修需求后,与业主沟通装修方案以及现场量房并制作报价单等工作,后续经设计师与业主提报方案并做相应方案沟通调整,经双方达成意向后,设计师设计绘制别墅相关所需的方案图纸并沟通工程部装修方案以及协调公司其他相关部门装修前筹等工作。
拆改阶段
土建拆墙改造
公司根据和业主商定后的装修合同在规定的工程时间节点内安排工程部装修施工团队进场,并陆续开展现场拆改施工作业
水电阶段
水电隐蔽施工
现场水电布局
泥木阶段
木作泥瓦施工
现场砖墙吊顶泥木施工
油漆阶段
墙面油漆施工
竣工阶段
家具软装安装
已完成竣工客户非常满意
企业信息
立即预约