欢迎来到上海装潢网
咨询热线:400-118-8580
装修公司入驻
建材商入驻
下载APP
微信分享
首页
网站公告
装修预约
装修预约
工程招标
合同报价审核
监理服务
培训报名
空气检测
装修公司
资质查询
企业动态
装修团队
新闻中心
短视频
精英访谈
装修问答
装修投诉
投诉列表
投诉提交
企业名录
红黑榜单
我要监理
我要监理
工地播报
监理验收
下载中心
文档中心
报价下载
合同下载
验收标准
施工规范
逾期赔偿参照表
建材服务
建材商家
商品列表
上海云兰建筑装饰工程有限公司
网络监督单位
质保金:
无质保金
口碑值:
43933
全站排名:
第
位
区域:
静安区
地址:
上海11家门店就近为你服务
电话:
18917686391
会员订单:
62单
浏览量:
36679
微信分享
在线预约
店铺首页
公司动态
工地播报
企业证书
服务团队
经典案例
在建工地
优惠活动
联系我们
上海云兰建筑装饰工程有限公司
网络监督单位
预约电话:
18917686391
在线:
2026-04-23
(一天前)
店铺首页
公司动态
工地播报
企业证书
服务团队
经典案例
优惠活动
联系我们
预约装修
会员订单
62条
预约
预约提交成功
客服人员将会与您联系,请保持手机畅通
查询热线
400-118-8580
上海云兰建筑装饰工程有限公司
在建工地
长寿路
在建工地
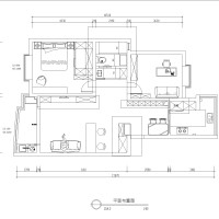
项目名称:
长寿路
区域:
上海上海静安区
开工日期:
2021-07-23
竣工日期:
2021-10-22
面积:
92㎡
预算:
14万元
户型:
二房
风格:
现代风格
施工单位:
上海云兰建筑装饰工程有限公司
团队
萧芳油
浦东店首席设计师
施工情况
准备阶段
预算图纸准备
拆改阶段
土建拆墙改造
水电阶段
水电隐蔽施工
泥木阶段
木作泥瓦施工
新砌砖墙抹灰挂网
贴瓷砖前凿毛处理防空鼓开裂
凿毛后刷墙面界面剂防空鼓开裂
防水上墙至少20公分
油漆阶段
墙面油漆施工
竣工阶段
家具软装安装
企业信息
立即预约