欢迎来到上海装潢网
咨询热线:400-118-8580
装修公司入驻
建材商入驻
下载APP
微信分享
首页
网站公告
装修预约
装修预约
工程招标
合同报价审核
监理服务
培训报名
空气检测
装修公司
资质查询
企业动态
装修团队
新闻中心
短视频
精英访谈
装修问答
装修投诉
投诉列表
投诉提交
企业名录
红黑榜单
我要监理
我要监理
工地播报
监理验收
下载中心
文档中心
报价下载
合同下载
验收标准
施工规范
逾期赔偿参照表
建材服务
建材商家
商品列表
极友家居科技(上海)有限公司
网络监督单位
质保金:
无质保金
口碑值:
29905
全站排名:
第
位
区域:
浦东新区
地址:
上海市静安区汶水路259号28幢C栋
电话:
400-118-8580
浏览量:
8378
微信分享
在线预约
店铺首页
公司动态
企业证书
服务团队
经典案例
在建工地
优惠活动
联系我们
极友家居科技(上海)有限公司
网络监督单位
预约电话:
400-118-8580
在线:
2026-02-09
(2个月前)
店铺首页
公司动态
企业证书
服务团队
经典案例
优惠活动
联系我们
预约装修
预约
预约提交成功
客服人员将会与您联系,请保持手机畅通
查询热线
400-118-8580
极友家居科技(上海)有限公司
在建工地
小楼高数尺,手可摘星辰
在建工地
项目名称:
小楼高数尺,手可摘星辰
区域:
上海上海黄浦区
开工日期:
竣工日期:
面积:
142㎡
预算:
万元
户型:
复式
风格:
现代风格
施工单位:
极友家居科技(上海)有限公司
团队
没有找到本项目的参与人员
施工情况
竣工阶段
家具软装安装
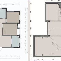
业主如此关心楼梯的设计,原因之一就是,原有的楼梯靠近入户门,占用了餐厅的空间,上下楼也很局促。设计师大胆地将靠近原厨房的一间卧室的非承重墙全部拆除。然后将楼梯的位置移至被拆除房屋原本靠近走廊的附近,从而释放入户门和餐厅所在空间。进户门的一侧还利用与入户门相邻墙体的内凹部分做了嵌入式的多功能组合柜,挂包、放钥匙、坐着换鞋等动作一气呵成,回家的感觉真好。
原始户型图
平面设计图
企业信息
立即预约