欢迎来到上海装潢网
咨询热线:400-118-8580
装修公司入驻
建材商入驻
下载APP
微信分享
首页
网站公告
装修预约
装修预约
工程招标
合同报价审核
监理服务
培训报名
空气检测
装修公司
资质查询
企业动态
装修团队
新闻中心
短视频
精英访谈
装修问答
装修投诉
投诉列表
投诉提交
企业名录
红黑榜单
我要监理
我要监理
工地播报
监理验收
下载中心
文档中心
报价下载
合同下载
验收标准
施工规范
逾期赔偿参照表
建材服务
建材商家
商品列表
上海东顺设计装饰有限公司
网络监督单位
质保金:
20万
口碑值:
30472
全站排名:
第
位
区域:
浦东新区
地址:
浦东新区盛苑路800弄
电话:
400-118-8580
会员订单:
1216单
浏览量:
13272
微信分享
在线预约
店铺首页
公司动态
工地播报
企业证书
服务团队
经典案例
在建工地
优惠活动
联系我们
上海东顺设计装饰有限公司
网络监督单位
预约电话:
400-118-8580
在线:
2025-12-25
(3个月前)
店铺首页
公司动态
工地播报
企业证书
服务团队
经典案例
优惠活动
联系我们
预约装修
会员订单
1216条
预约
预约提交成功
客服人员将会与您联系,请保持手机畅通
查询热线
400-118-8580
上海东顺设计装饰有限公司
在建工地
常德路1258弄17号
在建工地
项目名称:
常德路1258弄17号
区域:
上海上海普陀区
开工日期:
2015-07-02
竣工日期:
2015-08-02
面积:
97㎡
预算:
半包4.4977万元
户型:
二房
风格:
现代风格
施工单位:
上海东顺设计装饰有限公司
团队
王洪林
施工队长
吉清武
项目经理
王超
资深设计师
刘道楫
首席设计师
施工情况
竣工阶段
家具软装安装
俯瞰图
厨房
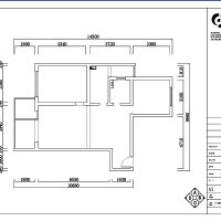
原始平面图
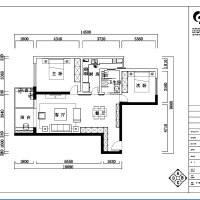
平面布置图
施工现场
施工现场
隐蔽工程验收
隐蔽工程验收
隐蔽工程验收
隐蔽工程验收
隐蔽工程验收
企业信息
立即预约