欢迎来到上海装潢网
    上海居丽建筑装潢工程有限公司
    网络监督单位
    质保金: 5万
    口碑值: 38417
    全站排名:
    业主评分: 5
    区域:
    浦东新区
    地址:
    浦东新区张杨路1703号
    电话:
    400-118-8580
    会员订单:
    109单
    浏览量:
    17364
    微信分享
    在线预约
    上海居丽建筑装潢工程有限公司
    网络监督单位
    预约电话:
    400-118-8580
    在线:
    2026-04-19 (三天前)
    预约
    预约提交成功
    客服人员将会与您联系,请保持手机畅通
    查询热线400-118-8580
    上海居丽建筑装潢工程有限公司 经典案例 皇都花园—完工效果图

    皇都花园—完工效果图

    张献群

    首席设计师

    王永远

    工程队长

    罗煜馨

    材料部经理

    王兆华

    工程监理
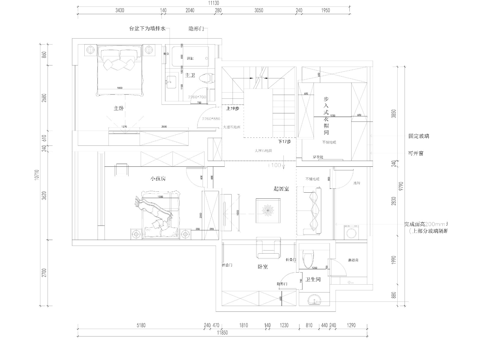
    风格:美式风格 布局:联排别墅 面积:156㎡ 造价:208400万元
    位置: 上海 上海 闵行区
    案例说明

    突出家居的实用与舒适,美式装修为你打造一个温馨、宁静的理想家园。在这个快节奏的时代,家是我们心灵的港湾,是我们放松身心的所在。美式装修以其自然、舒适、实用的风格特点,成为当下越来越多人的选择。它汲取了多元文化的元素,让我们在装修过程中可以灵活运用各种元素来打造个性化的家居空间。美式装修强调自然、舒适和实用,在把握装修潮流的同时,注重细节处理。

    独特的美式风格装修,融合了经典与现代元素,让空间更加舒适和 温馨。
    美式风格的家具,造型挺拔秀气,线条饱满圆润,色彩对比鲜明。
    别墅之美,在于细节,在于品质,在于用心打造的每一个角落。
    独特的造型和材料选择,营造出复古氛围,同时保留现代元素,使整体装修更具时代感。
    充分利用空间的开放性,打造出通透的起居空间,使家人和客人可以尽情地交流和互动。
    访客留言