欢迎来到上海装潢网
咨询热线:400-118-8580
装修公司入驻
建材商入驻
下载APP
微信分享
首页
网站公告
装修预约
装修预约
工程招标
合同报价审核
监理服务
培训报名
空气检测
装修公司
资质查询
企业动态
装修团队
新闻中心
短视频
精英访谈
装修问答
装修投诉
投诉列表
投诉提交
企业名录
红黑榜单
我要监理
我要监理
工地播报
监理验收
下载中心
文档中心
报价下载
合同下载
验收标准
施工规范
逾期赔偿参照表
建材服务
建材商家
商品列表
上海三羊建筑装饰工程有限公司
非网络监督单位
质保金:
无质保金
口碑值:
84
全站排名:
第
位
区域:
松江区
地址:
松江区茸北路551号5幢1层102室
电话:
400-118-8580
会员订单:
10单
浏览量:
7473
微信分享
在线预约
店铺首页
公司动态
企业证书
服务团队
经典案例
在建工地
优惠活动
联系我们
上海三羊建筑装饰工程有限公司
非网络监督单位
预约电话:
400-118-8580
在线:
2025-07-10
(半年前)
店铺首页
公司动态
企业证书
服务团队
经典案例
优惠活动
联系我们
预约装修
会员订单
10条
预约
预约提交成功
客服人员将会与您联系,请保持手机畅通
查询热线
400-118-8580
上海三羊建筑装饰工程有限公司
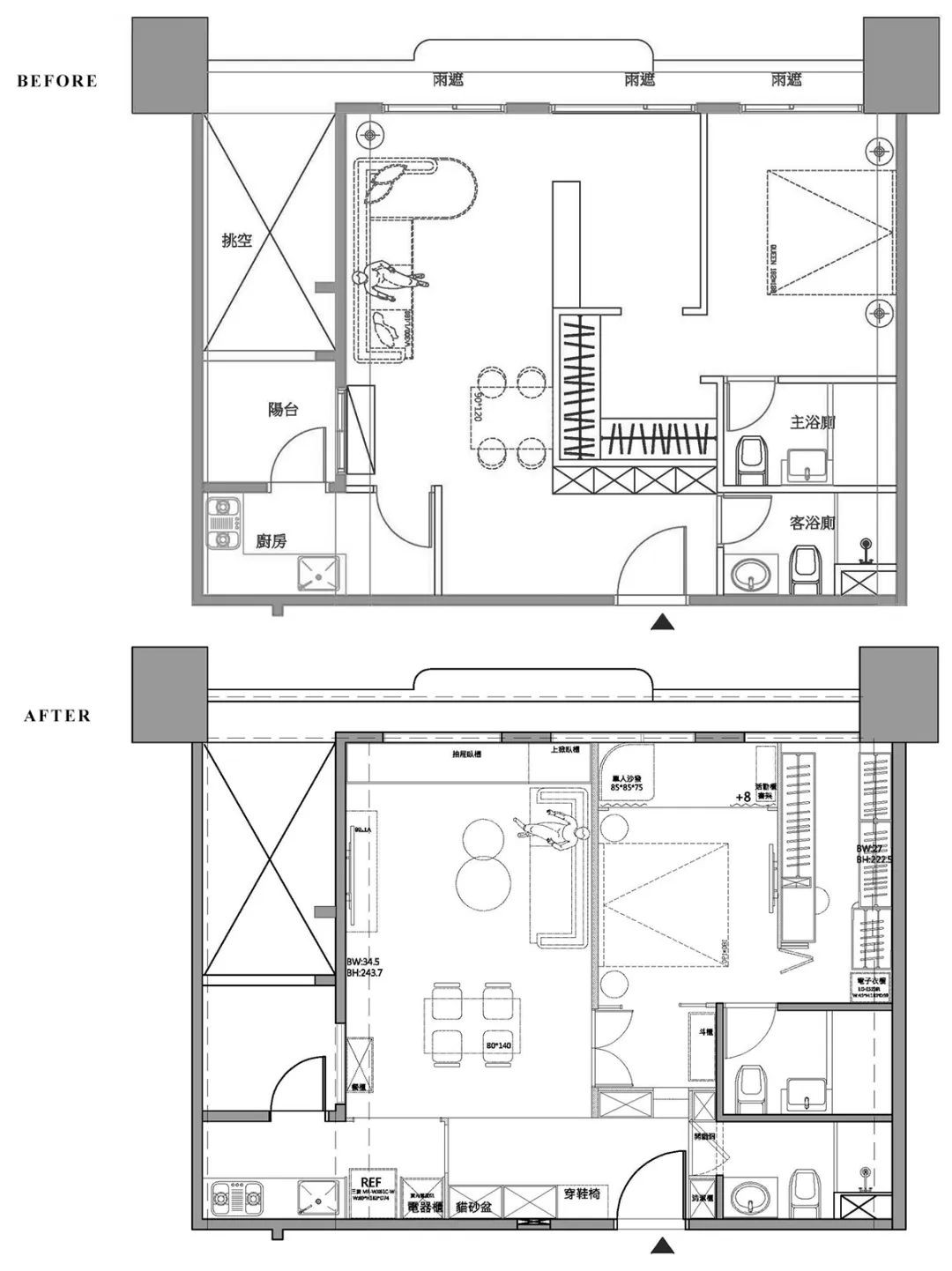
经典案例
松南城裕德苑
松南城裕德苑
王凯
设计总监
风格:其他
布局:小户型
面积:76㎡
造价:万元
位置: 上海 上海 松江区
案例说明
今天分享的案例,屋主夫妻都是文字工作者,偏爱法国老宅的优雅风情。所以设计师采用了人字拼木板、花砖、对开门、藤编等多种复古元素,打造质朴而文雅的住宅气质。
房屋情况: · 面积:76㎡ · 格局:1室1厅1卫 · 常住人口:2大2猫
玄关: 玄关以法式花砖作为落尘区,柚木鞋柜的藤编门与旁边的玻璃窗格相互呼应,营造丰富的空间质感。
进门左手边设立换鞋凳,并与高柜衔接,大大增加了家里的收纳空间。
餐厨: 踏上人字拼地板,即进入了餐厅,餐厅紧邻厨房一侧,日常下厨-吃饭,动线十分流畅。
电视背景墙不做过多修饰,用复古的水磨石围绕,这种简单质朴的材料恰恰让屋主保留对老宅的记忆。
虽然平时家里只有夫妻两人,但屋主仍旧选了一张较大的餐桌,用来充当就餐 办公的场所。
客厅: 全屋家具与地板以深色调为主,为了缓解深色带来的压迫感,设计师刻意将客厅腰线拉低到70cm,由此更好地衬托出白墙,提升空间感。
沙发背景墙用中性的奶茶色接替水磨石,舒缓了一屋的深沉木色,墙上的石膏线也渲染出浪漫的法式氛围。
主卧: 推开对开门,就是卧室区。卧室整体风格与沙发背景墙一致,以淡奶茶色为主,这种和缓轻柔的环境也更适合睡眠。
为了弥补没有阳台的遗憾,设计师特意在卧室一侧设计了地台。将半弧座椅与简易书架放置其中,构建出屋主理想的阅读角落。
衣帽间与主卧相连,女主人的化妆区也设立于此,日常梳妆、换衣十分便捷。
访客留言