欢迎来到上海装潢网
    上海三羊建筑装饰工程有限公司
    非网络监督单位
    质保金: 无质保金
    口碑值: 84
    全站排名:
    区域:
    松江区
    地址:
    松江区茸北路551号5幢1层102室
    电话:
    400-118-8580
    会员订单:
    10单
    浏览量:
    7470
    微信分享
    在线预约
    上海三羊建筑装饰工程有限公司
    非网络监督单位
    预约电话:
    400-118-8580
    在线:
    2025-07-10 (半年前)
    预约
    预约提交成功
    客服人员将会与您联系,请保持手机畅通
    查询热线400-118-8580
    上海三羊建筑装饰工程有限公司 经典案例 黑金色调打造的年轻感的家

    黑金色调打造的年轻感的家

    钱开霞

    设计总监
    风格:混搭风格 布局:复式 面积:156㎡ 造价:万元
    位置: 上海 上海 松江区
    案例说明

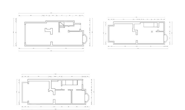
    改造前户型 一二三层户型一致,只不过三层是挑空的阁楼,并带一个露台
    改造后一层格局 从玄关入进入餐厨一体空间,开放厨房会显得空间宽阔,一层卫生间改造成为干湿分离 通过餐厅和客厅之间的门洞进入客厅,客厅以简单的方式摆放,储物电视墙+一组沙发,大空间的客厅充分体现大户型的空间感 二层平面 上楼梯后可直接进入次卧,或者通过走廊穿过衣帽间后进入主卧空间 三层平面 因为是挑高空间,所以做了额外一层的阁楼卧室,整个三层的空间预留给儿童作为活动区 四层阁楼平面 以双人床和储物柜为主
    从入户进入后正对入户的就是通往二层的楼梯口 墙面挂着一副名为“黑洞”的装饰画,几何线条,黑色色块温柔且酷 装饰画:PRINT:H CHUYE
    通过餐厅与客厅之间的门洞进入客厅 没有任何造型的方形门洞带来利落感,墙面使用了有机理的艺术漆,细看有斑驳的机理
    客厅空间 顺应客厅的大空间,沙发选择了三米长的HAY模块沙发,方形沙发的体块感很有力量,和舒适的坐感形成反差,深咖的羊毛材质显得温暖自然 沙发背后的纯黑色油画的肌理感和艺术漆墙面的机理形成呼应,同样黑色的沙发椅和茶几的搭配给空间带来强烈的质感 沙发:hay 茶几:kar-studio 象腿椅:drade
    茶几来自国内品牌kar的设计 茶几造型没有棱角,温柔蜿蜒而成,极具雕塑感 业主告诉我她很喜欢这款茶几,因为玻璃钢材质很好打理,并且很轻可以任意移动
    茶几细节茶几细节茶几细节
    客厅侧面是一大面落地窗,通往后门的院子 浅灰色的纱帘颜色和墙面呼应,单层的纱帘可以很好的柔化光线,也显得轻盈飘逸 象腿椅的搭配在空间里也显得很有艺术感,业主家的拉布拉多很乖的坐在椅子上当我们的模特
    打开落地灯后的效果 来自tb:casa
    沙发一角 大颗龟背竹带来一丝绿意和自然感
    侧面利用砌墙时墙面凹进去的一块空间做了一个黄铜色的壁龛,用拉丝不锈钢工艺制作,大面积的黄铜色给空间带来很强的气场
    客厅电视墙定制了一面纯黑色的储物柜,为了在电视关闭的状态下让整面墙的颜色完整一体 柜门都定制成简洁的整块门板,没有任何多余的造型 柜门上面留了空隙,内藏灯带,通过顶面的反射带来氛围 定制柜:carol 地板:宅匠
    电视柜一侧摆放了植物增加自然气息 植物:荒野景观
    黑色的异形沙发椅
    装饰画细节
    金属细节
    透过门洞看到餐厨空间 墙面和客厅一样都用了浅灰色的艺术漆,地板通铺形成完整的视觉效果,黑白灰的基础配色通过材质的不同搭配有了更好的呈现
    透过门洞看到餐厨空间 墙面和客厅一样都用了浅灰色的艺术漆,地板通铺形成完整的视觉效果,黑白灰的基础配色通过材质的不同搭配有了更好的呈现
    餐厅和厨房安排在同一个空间 左侧墙面做了卡座,更好的利用空间面积 黑色的餐桌呼应了空间的色调,而细腿又显得轻盈通透 餐桌:MENU
    餐桌为圆角的款式,和圆润的象腿椅圆润的造型般配 用了三个球形玻璃灯罩的吊灯,开灯后光会源柔和的从光罩散发出来 吊灯:MENU
    一层卫生间干区部分 浴室柜和储物柜表面刷上墙漆材质保证整体性
    卫生间干区 黑色部分为定制的岩板,台面以及水槽内部都用同样材质 为了增加灯光层次,在台面靠墙的位置也做了一个向上打的灯槽 浴室柜左侧的空隙预留给猫砂盆
    从一层上楼后的走廊空间 整体风格和色调和一层保持一致,墙面灰色艺术漆,地面拉丝橡木
    次卧空间 墙面灰色艺术漆从走廊延申进卧室,床头和床头柜以及床体均为定制,床头的木色也是尽量按照地板的颜色还原,保证空间材质的统一 床头台灯的洞石和古铜材质也和整体空间氛围很融合 台灯:MENU
    绿植给房间带来生机
    床头细节
    床尾处利用墙面凹型结构定制了木色的隔板
    主卧进门处的衣帽间 柜门用纯黑色烤漆板,既然采光不好就让它暗到底吧
    洗漱区也安排在了衣帽间,形成干湿分区 黑色一体台面台盆,搭配灰色墙面和柜门,黄铜点缀 透过镜子可以看到主卧的双开门,也做成了隐形门的形式
    打开门后看到主卧空间
    因为卧室空间比较大,所以大胆的把主卧床安排在了中间,让动线更灵活,也显得空间更宽敞 主卧床体也是设计好后定制,三边做高形成包裹感 床头那面墙做了壁龛,黄铜材质给人很强的视觉冲击力,又能给空间带来很强的气场
    床的三面都带储物功能,而台面也可以放一些装饰品和日常用品
    床尾面对沙发的地方做成开放架 侧面床下的凹槽预留灯带 整个房间没有吊顶,也没有任何顶灯,因为卧室本身就是休息空间,不需要太亮,而灯带和台灯为主的照明基本就能带来基本的照明,空间简洁干净的基础上又带来很好的氛围灯光
    床侧面定制了整面墙的衣柜和书桌一体的定制柜 柜门直接用墙漆涂刷,保证墙面和柜门颜色材质的统一,木色部分按照地板颜色定制,书桌部分没有任何多余造型,极简又充满细节
    书桌近景
    书桌细节
    主卧床尾落地窗前定制了一款暖色调的togo皮沙发,两侧带扶手可以更好的侧着躺 阳台吊顶内嵌投影幕布
    三层墙面以米色系为主 一层同款的咖色hay沙发坐感舒适,搭配原木色茶几,整个空间简洁温暖 茶几:Kristina Dam 墙漆:佐敦11173
    通往阁楼卧室的楼梯
    扶手用石膏板现场做出来,表面刷墙漆,形成极简的结构感 fols的蚕丝吊灯带来艺术感
    因为层高原因,所以阁楼没有放很高的成品床,直接在羊毛地毯上摆放了床垫,轻松随性
    因为层高原因,所以阁楼没有放很高的成品床,直接在羊毛地毯上摆放了床垫,轻松随性
    卫生间墙地面以浅灰色的防水水泥漆为主 黑色和黄铜色点缀
    黄铜色内嵌龙头
    访客留言