欢迎来到上海装潢网
    上海知一装饰设计工程有限公司
    非网络监督单位
    质保金: 无质保金
    口碑值: 145
    全站排名:
    区域:
    嘉定区
    地址:
    民乐路1弄10号(近沪宜公路)
    电话:
    400-118-8580
    浏览量:
    2192
    微信分享
    在线预约
    上海知一装饰设计工程有限公司
    非网络监督单位
    预约电话:
    400-118-8580
    在线:
    2023-02-07 (3年前)
    预约
    预约提交成功
    客服人员将会与您联系,请保持手机畅通
    查询热线400-118-8580
    上海知一装饰设计工程有限公司 经典案例 日式82㎡的一居室,把日剧的场景搬回家!

    日式82㎡的一居室,把日剧的场景搬回家!

    唐才中

    设计师
    风格:现代风格 布局:小户型 面积:82㎡ 造价:万元
    位置: 上海 上海 黄浦区
    案例说明

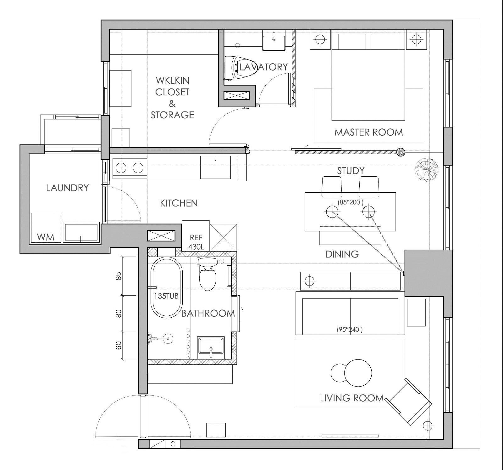
    生活节奏的日益加快,简单、简约成为了大多数人对家的最大需求。 本案房屋建面82㎡,原户型为三室一厅二卫的小三房。 业主为日本留学归来的海归大学生,在与业主充分沟通交流后。 最终选择了日式简约风,同时将小三房改成了舒适宽敞的一居室! 以原木色为主色调,配合竹、藤、麻等元素形成了朴素的自然风格。搭配和风传统节日用品鲤鱼旗、御守、招财猫等点缀。日剧中的常见场景,便这么跃然于眼前了。

    (摒弃原有户型,只留下一个卧室)
    将原有墙体拆除后,整体空间更大明亮与宽敞。客餐厅无隔断,沙发背后便是一个简易的餐桌。在木地板的映衬下,沙发要选择较为明亮轻快的颜色。进行一定的点缀作用。
    简易的单人沙发与茶几,融于这简约的装修中,一点都不显得突兀。
    一幅个性的落地画,搭配一个精致的小盆栽,就这么安安静静的在客厅一隅摆放着。
    简易的餐桌,宽敞而实用。原木色的餐椅搭配大面积的留白,墙上的装饰画,再加上百叶帘的设计,简约与温馨同时并存。无主灯的设计,将个性灯具的美也烘托的毫无保留。
    开放式的厨房,一字型的橱柜布局,一抹抹茶绿与小面砖的配合。橱柜和吊柜,及两者之间的墙面也被充分使用,用于收纳。
    卧室主打沉稳的色系,夜晚使思绪都回归到自己的本身。一个个性的梯子替代了床边柜,再挂上一个暖色系的小灯,格调感悠然而上。
    喜欢泡澡的业主,特地选购了一个精致的浴缸。 卫生间也使用浴帘代替了淋浴房的隔断,进行了简易的干湿分离。浴缸旁边的壁龛则增加了卫生间的收纳空间。
    访客留言