欢迎来到上海装潢网
    上海璟逸建筑装饰设计工程有限公司
    非网络监督单位
    质保金: 5万
    口碑值: 591
    全站排名:
    区域:
    徐汇区
    地址:
    中山西路2025号永升大厦1901
    电话:
    400-118-8580
    会员订单:
    84单
    浏览量:
    11695
    微信分享
    在线预约
    上海璟逸建筑装饰设计工程有限公司
    非网络监督单位
    预约电话:
    400-118-8580
    在线:
    2024-03-08 (2年前)
    预约
    预约提交成功
    客服人员将会与您联系,请保持手机畅通
    查询热线400-118-8580
    上海璟逸建筑装饰设计工程有限公司 经典案例 尺寸感、高级感、舒适度,达到和谐的家丨壹家空间

    尺寸感、高级感、舒适度,达到和谐的家丨壹家空间

    王雅楠

    设计总监
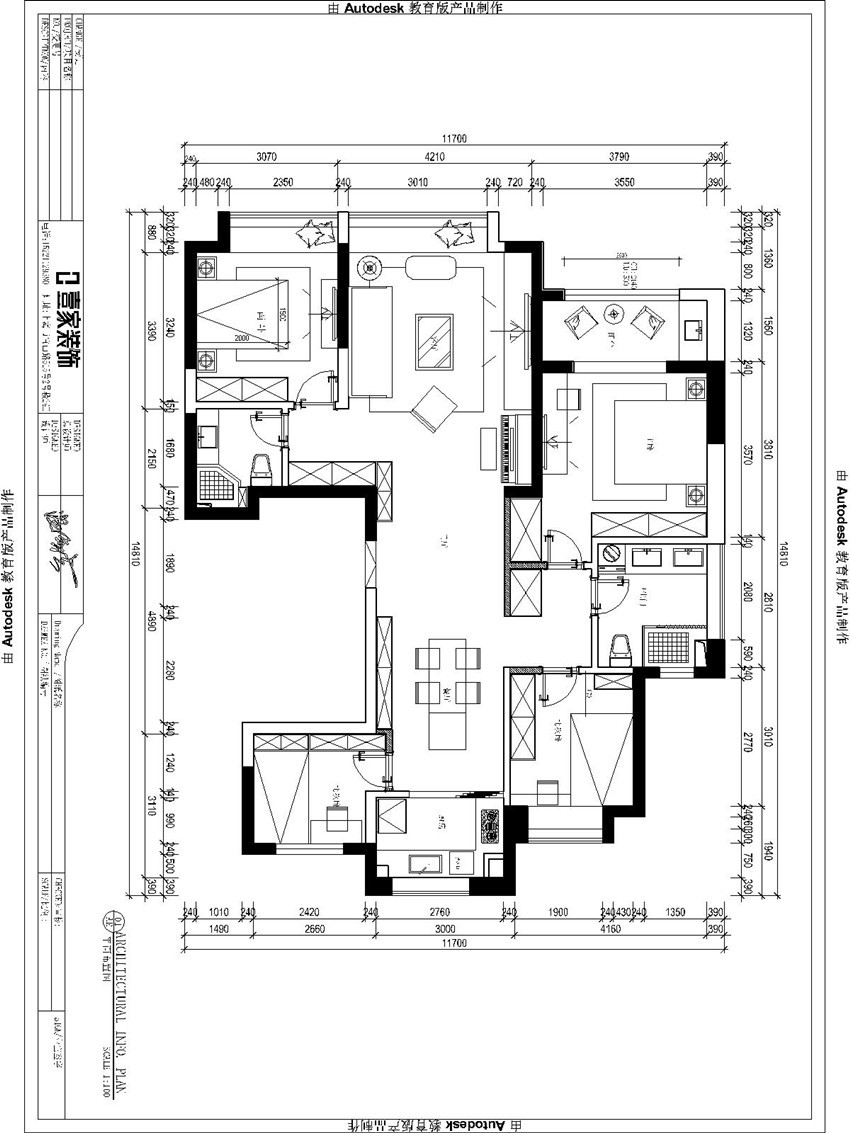
    风格:现代风格 布局:三房 面积:120㎡ 造价:万元
    位置: 上海 上海 闵行区
    案例说明

    本案业主是我们都很熟悉的的老朋友,在业主和装修公司“互相不痛快”的装修界,我们却和业主成了老朋友、好朋友。在拿房之前,就来探讨了设计,一周一次3-4小时的讨论,数月以后最终还是选择了我们,被欣赏并被选择,总是让人感到欣喜。对于家,业主有着自己独特的想法与要求,当然,对设计的接受度也很高,与设计师的沟通中,全程高契合度;施工过程中也相当配合,为了追求效果,家具、灯具、摆件都选择了设计师推荐的款式,遇到一个懂你的设计师,或遇到一个懂你的业主,都是一件让人十分兴奋的事;完成一套好的设计,单方面的热情是不够的,一拍即合才是最令人开心的事。

    本案业主是我们都很熟悉的的老朋友,在业主和装修公司“互相不痛快”的装修界,我们却和业主成了老朋友、好朋友。在拿房之前,就来探讨了设计,一周一次3-4小时的讨论,数月以后最终还是选择了我们,被欣赏并被选择,总是让人感到欣喜。对于家,业主有着自己独特的想法与要求,当然,对设计的接受度也很高,与设计师的沟通中,全程高契合度;施工过程中也相当配合,为了追求效果,家具、灯具、摆件都选择了设计师推荐的款式,遇到一个懂你的设计师,或遇到一个懂你的业主,都是一件让人十分兴奋的事;完成一套好的设计,单方面的热情是不够的,一拍即合才是最令人开心的事。
    入户玄关处做了到顶柜式收纳柜,用来收纳进出门常穿的外套、包包、鞋子等,保证空间干净整洁。
    业主老朋友说早之前就想拥有一面书墙,这次家里装修直接就扔掉沙发,天地间顿时宽广了许多!简直超爱的书墙,收纳功能强大,孩子的玩具,手工作品随便往上一放,都挺好看,至于积灰什么的,擦一下咯。老朋友喜欢呆在客厅办公,光线足,旁边就是阳台,绿意盎然的也很养眼。一张灰白色的懒人椅,干净舒适,色彩上又与整体色调相呼应~
    过道、客厅、餐厅利用罗马柱形成大门洞结合圆形吊顶作隔断,打造轻奢品味小资情调,高级灰花纹墙纸作为空间跳色,尽显法式的浪漫和高级。拱形的穿衣镜安装在卫生间与入户门之间,内部反射的影像让区域仿佛增加了一个空间,让整体空间显得更大。
    卧室设计以简单为主,以轻松、时尚的灰色调作为主色。蓝色的床与明亮光线相交,形成色调与风格上的对比。营造出简约、轻奢的感觉。
    处处有惊喜,主卧洗漱台放在过道,简单斜贴嵌入四花色长砖+渐变镜,清新的北欧风让人心旷神怡。独特的纹理有很好的装饰效果。墙角的嵌入式收纳更是实用,还能节省空间。
    儿童房的物品相对比较多配备了两个容量充足的储物抽屉,满足日常的收纳需求。衣柜紧靠墙面摆放贴身衣物可以分类摆放其中,拿取都很方便。
    次卧不需要多余的装饰,实用为主。
    专属定制U型橱柜,地柜采用深色系柜门,吊柜采用白色柜门,两种对立色搭配,很喜欢上下橱柜的材质,平常打理起来好方便。
    餐厅最给力的设计就是这嵌入式收纳柜了,东西存放其中,家也显得整洁大方许多了。中间留空的部分,平常放放书籍和小摆件,都是特别合适的。
    卫生间延续轻奢至简的空间风格,用玻璃隔断做干湿分离的设计,实用有格调。 好的设计也许不需要大刀阔斧,只需通过对材质的把控、色彩的搭配,便可以将空间功能合理切割,以及利用细腻入微的美学来营造沉浸式体验的居家环境。
    访客留言