欢迎来到上海装潢网
咨询热线:400-118-8580
装修公司入驻
建材商入驻
下载APP
微信分享
首页
网站公告
装修预约
装修预约
工程招标
合同报价审核
监理服务
培训报名
空气检测
装修公司
资质查询
企业动态
装修团队
新闻中心
短视频
精英访谈
装修问答
装修投诉
投诉列表
投诉提交
企业名录
红黑榜单
我要监理
我要监理
工地播报
监理验收
下载中心
文档中心
报价下载
合同下载
验收标准
施工规范
逾期赔偿参照表
建材服务
建材商家
商品列表
极友家居科技(上海)有限公司
网络监督单位
质保金:
无质保金
口碑值:
29905
全站排名:
第
位
区域:
浦东新区
地址:
上海市静安区汶水路259号28幢C栋
电话:
400-118-8580
浏览量:
8375
微信分享
在线预约
店铺首页
公司动态
企业证书
服务团队
经典案例
在建工地
优惠活动
联系我们
极友家居科技(上海)有限公司
网络监督单位
预约电话:
400-118-8580
在线:
2026-02-09
(2个月前)
店铺首页
公司动态
企业证书
服务团队
经典案例
优惠活动
联系我们
预约装修
预约
预约提交成功
客服人员将会与您联系,请保持手机畅通
查询热线
400-118-8580
极友家居科技(上海)有限公司
经典案例
横梁压顶的压抑感如何化解?
横梁压顶的压抑感如何化解?
李亚娟
总监设计师
风格:其他
布局:二房
面积:70㎡
造价:万元
位置: 上海 上海 黄浦区
案例说明
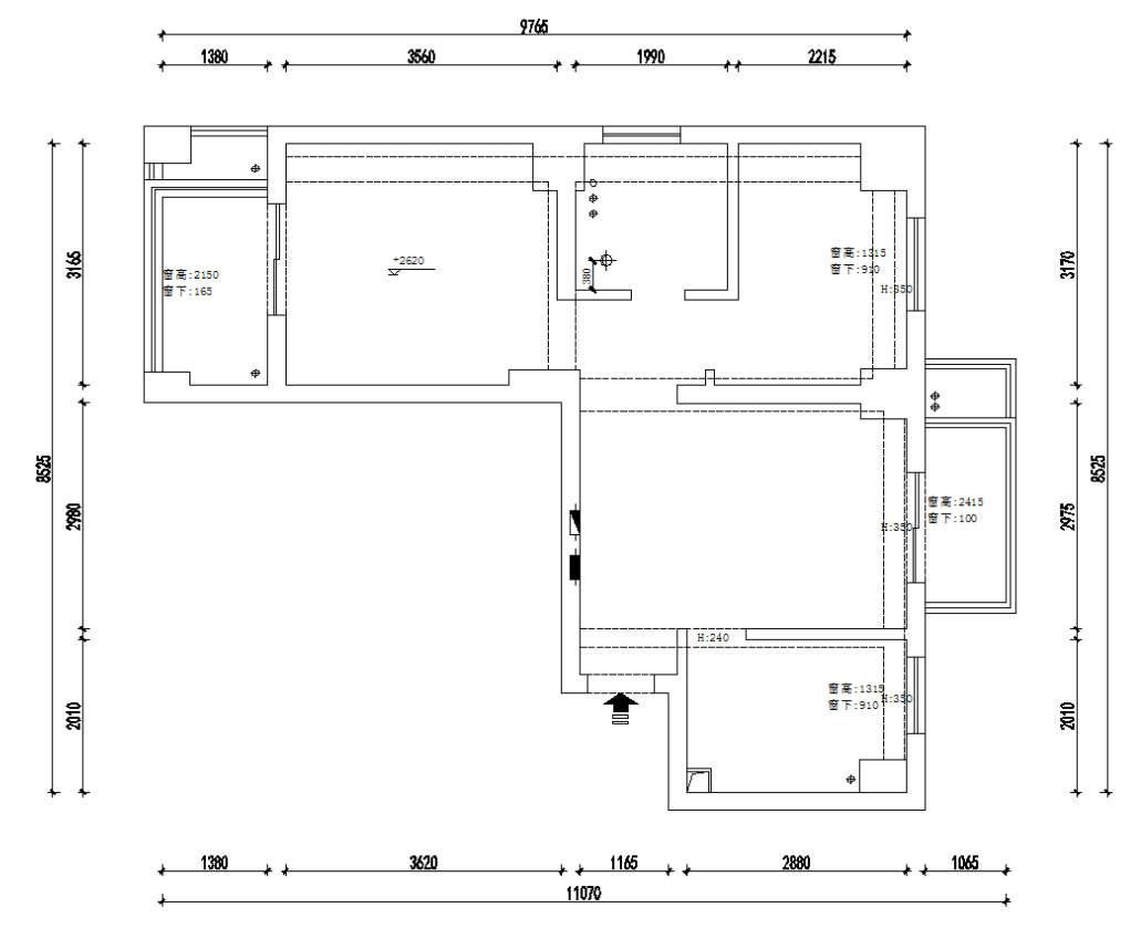
今天要分享的这套案例,原始的房子有个最大的问题——每个区域都有梁,而且向下延伸的位置很低,那么尽可能减轻房梁带来的压抑感,就成了业主最大的诉求。
原始户型图
平面设计图
沙发选择了灰色布艺,配跳色的抱枕,提亮了整个空间。地面铺设灰色复合地板搭配原木色电视柜餐桌,又增加了空间的现代感。
原有北阳台打通做好落地窗后,改成了餐厅。餐桌靠窗放,餐桌上配了一盏暖色直线小吊灯,使整个空间看起来更加温馨。
厨房墙砖选用了比较大胆的深灰色墙砖配原木色的厨柜。地面铺设的黑白灰三色的六角砖使整个空间更加活跃。
卫生间墙地面采用了灰色仿古砖,搭配原木色的卫浴柜,使整个空间更接近自然,淋浴区地面在原有仿古砖的基础上增加铺设了桑拿板,特别在寒冷的冬天,不用踩在冰冷的地砖上,而且桑拿板选用了进口的松木,经过防水防腐特殊处理,不仅环保还不怕水泡,更不用担心发霉腐烂!
主卧跟南阳台移门打通,扩大了卧室空间,不仅使空间看起来更通透宽敞,而且视觉效果上也更显高级,阳台窗采用了隔音隔热的型材做了落地窗,原阳台区改成了休闲区,做了地台,业主可以在这里看看书陪孩子玩耍。
房内暂时放了一件黑色的铁艺小床,一方面给孩子留有更多活动空间,另一方面随着孩子的成长可以调换家具。
访客留言