欢迎来到上海装潢网
    极友家居科技(上海)有限公司
    网络监督单位
    质保金: 无质保金
    口碑值: 29905
    全站排名:
    区域:
    浦东新区
    地址:
    上海市静安区汶水路259号28幢C栋
    电话:
    400-118-8580
    浏览量:
    8375
    微信分享
    在线预约
    极友家居科技(上海)有限公司
    网络监督单位
    预约电话:
    400-118-8580
    在线:
    2026-02-09 (2个月前)
    预约
    预约提交成功
    客服人员将会与您联系,请保持手机畅通
    查询热线400-118-8580
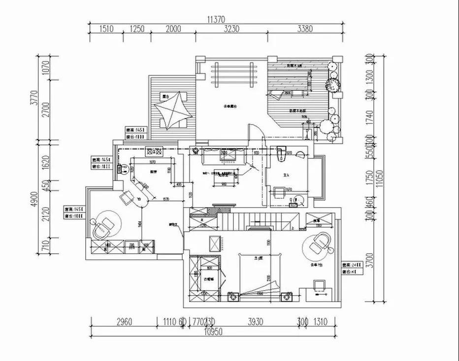
    极友家居科技(上海)有限公司 经典案例 两代人,一套房,各有独立空间

    两代人,一套房,各有独立空间

    周浩

    总监设计师
    风格:现代风格 布局:复式 面积:230㎡ 造价:万元
    位置: 上海 上海 黄浦区
    案例说明

    天的要和大家分享的这套复式房,就要说到设计师通过巧妙的设计,将业主夫妇和其父母的居住空间分隔成两个独立空间,既能便捷的相互照应,还能互不打扰,可谓是和美的“一碗汤距离”。

    这套房子,原本就一个进户门。设计师看了后,建议把屋内的楼梯封掉,楼上另开进户门,装成两套独立的房子,没想到业主正有此意,一拍即合。
    夫妻客厅:在风格上,业主夫妻比较喜欢灰、黑等冷色调风格,而其父母则比较喜欢米、白等传统暖色调,这样的分隔也让每套房子有了自己独立的特点。
    父母客厅
    二楼是小夫妻居住的地方。客厅通往卫生间的门如何做节省空间?最终选用了蓝色谷仓门配红墙,业主夫妻称这个点是家里的网红打卡点。这面墙的成本也很经济:谷仓门大概两千元、红砖才几百元。
    二楼厨房
    二楼吧台
    卫浴
    影音厅
    楼下业主父母的空间,米色皮质沙发+原木色实木地板+原木餐桌椅,看起来非常柔和。设计师在进户门一侧做了一整面收纳柜,便于收纳。
    厨房全白橱柜以及台面+黑色燃气灶面板,黑白颜色对比鲜明,便于老年人的使用。墙面大块瓷砖的铺贴,大气、易打理。
    访客留言