欢迎来到上海装潢网
    上海泰扬建筑装饰工程有限公司
    非网络监督单位
    质保金: 无质保金
    口碑值: 365
    全站排名:
    区域:
    长宁区
    地址:
    长宁区中山公园凯旋路399号龙之梦雅士大厦2楼201-217
    电话:
    400-118-8580
    会员订单:
    89单
    浏览量:
    7635
    微信分享
    在线预约
    上海泰扬建筑装饰工程有限公司
    非网络监督单位
    预约电话:
    400-118-8580
    在线:
    2024-01-03 (2年前)
    预约
    预约提交成功
    客服人员将会与您联系,请保持手机畅通
    查询热线400-118-8580
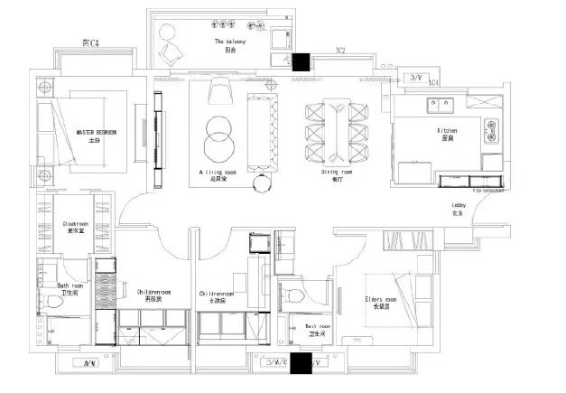
    上海泰扬建筑装饰工程有限公司 经典案例 《仁恒河滨花园二手房翻新》

    《仁恒河滨花园二手房翻新》

    杨欢

    首席设计师
    风格:现代风格 布局:四房 面积:130㎡ 造价:7.3万元
    位置: 上海 上海 长宁区 长宁区芙蓉江路388弄
    案例说明

    相较于现代简约,简欧风格在延续着欧洲浑厚的文化底蕴同时,更多了股欧式的浪漫典雅,以简约的线条代替复杂的花纹,采用更为明快清新的颜色,演绎着现代生活的休闲与舒适。 男孩房空间色彩的延续中,加入了姜黄色,强烈的色彩对比充满活力,为了让整个空间在色彩的张力不过于喧闹,以雅灰色和岩白色作为衬底色,让生活与活泼共存。

    访客留言