欢迎来到上海装潢网
    上海泰扬建筑装饰工程有限公司
    非网络监督单位
    质保金: 无质保金
    口碑值: 365
    全站排名:
    区域:
    长宁区
    地址:
    长宁区中山公园凯旋路399号龙之梦雅士大厦2楼201-217
    电话:
    400-118-8580
    会员订单:
    89单
    浏览量:
    7637
    微信分享
    在线预约
    上海泰扬建筑装饰工程有限公司
    非网络监督单位
    预约电话:
    400-118-8580
    在线:
    2024-01-03 (2年前)
    预约
    预约提交成功
    客服人员将会与您联系,请保持手机畅通
    查询热线400-118-8580
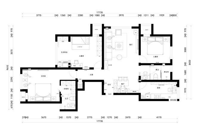
    上海泰扬建筑装饰工程有限公司 经典案例 《罗家锦苑二手房翻新》

    《罗家锦苑二手房翻新》

    杨欢

    首席设计师
    风格:其他 布局:三房 面积:120㎡ 造价:9.2万元
    位置: 上海 上海 青浦区 青浦区龙联路660弄
    案例说明

    整体采用简约风格加日式风格来设计,白色加原木色的空间简洁清爽又不失温馨的家居氛围,利用墙面定制大量的储物柜,舒适的家居生活,不在于装修效果是否华丽,更不在于空间的大小,装修越简洁的空间反而会令人感觉更舒服。

    访客留言