欢迎来到上海装潢网
    上海泰扬建筑装饰工程有限公司
    非网络监督单位
    质保金: 无质保金
    口碑值: 365
    全站排名:
    区域:
    长宁区
    地址:
    长宁区中山公园凯旋路399号龙之梦雅士大厦2楼201-217
    电话:
    400-118-8580
    会员订单:
    89单
    浏览量:
    7635
    微信分享
    在线预约
    上海泰扬建筑装饰工程有限公司
    非网络监督单位
    预约电话:
    400-118-8580
    在线:
    2024-01-03 (2年前)
    预约
    预约提交成功
    客服人员将会与您联系,请保持手机畅通
    查询热线400-118-8580
    上海泰扬建筑装饰工程有限公司 经典案例 《上海康城老房翻新》-《现代风格》

    《上海康城老房翻新》-《现代风格》

    高晓君

    首席设计师

    钱有军

    施工队长
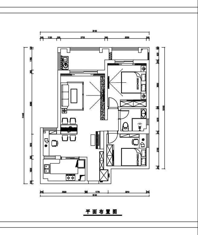
    风格:现代风格 布局:二房 面积:111㎡ 造价:12万元
    位置: 上海 上海 闵行区
    案例说明

    111m2两室现代风格 客厅 暖灰色的沙发墙上挂了几幅的抽象装饰画,结合灰色的布艺沙发,带来的是简约的优雅空间感。 两张黑色的圆形茶几,一高一矮,较高的这张还是以白色大理石台面,搭配旁边一张粉色的休闲椅,呈现出浪漫优雅的气质。 客厅沙发墙上方的筒灯,还有一盏轻奢风范的吊灯,整体设计现代优雅好大气。 卧室 卧室床头墙在留白的两侧挂了极简的壁灯,木质床搭配灰色与粉色的床单抱枕,简洁现代的衣柜搭配,整体显得素雅而又舒适大气。 厨房 厨房在暖灰色的地面墙面砖,搭配木色的橱柜吊柜,小小的厨房也有着方便轻松的操作台空间,做一顿丰富的晚餐随意从容 卫生间 灰白调的卫生间,加入了浴缸与淋浴功能,整体空间简洁优雅,实用档次。 书房 卧室床头墙在留白的两侧挂了极简的壁灯,木质床搭配灰色与粉色的床单抱枕,简洁现代的衣柜搭配,整体显得素雅而又舒适大气。 餐厅 餐厅以铁艺脚的餐桌椅,大理石台面与皮质座椅,顶上三盏灰***的吊灯,营造出现代优雅的浪漫氛围感。 餐厅背景墙上挂了一组的简约装饰画,中间加入一个时尚的时钟,与挂画的风格统一和谐,搭配桌面上的果盘与花瓶,营造出浪漫精致的用餐氛围。 玄关 玄关以复古地砖基础,在鞋柜的旁边还设置了一个黑色的钢琴,进门就是个实用与优雅情趣兼具的空间。

    访客留言