欢迎来到上海装潢网
    上海泰扬建筑装饰工程有限公司
    非网络监督单位
    质保金: 无质保金
    口碑值: 365
    全站排名:
    区域:
    长宁区
    地址:
    长宁区中山公园凯旋路399号龙之梦雅士大厦2楼201-217
    电话:
    400-118-8580
    会员订单:
    89单
    浏览量:
    7634
    微信分享
    在线预约
    上海泰扬建筑装饰工程有限公司
    非网络监督单位
    预约电话:
    400-118-8580
    在线:
    2024-01-03 (2年前)
    预约
    预约提交成功
    客服人员将会与您联系,请保持手机畅通
    查询热线400-118-8580
    上海泰扬建筑装饰工程有限公司 经典案例 《江桥三村整体翻新》-《田园风格》

    《江桥三村整体翻新》-《田园风格》

    高晓君

    首席设计师
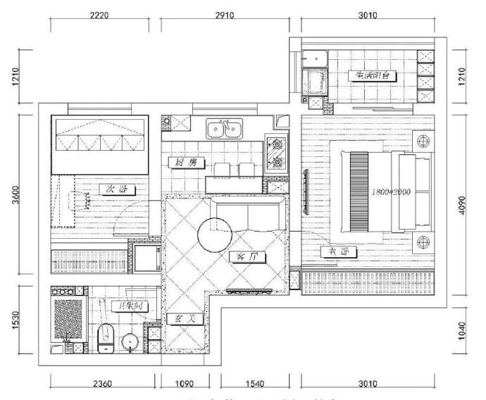
    风格:混搭风格 布局:二房 面积:70㎡ 造价:80000万元
    位置: 上海 上海 嘉定区 江桥三村
    案例说明

    70㎡两房田园风,造价:¥ 8万 田园风格在美学上推崇自然、结合自然,因为业主是一位少女心十足的小姐姐,在装饰上,主要采用业主喜欢的HelloKitty和蒙奇奇两种元素作为装饰,使业主沉浸在自己喜欢的氛围里,在色彩上,大胆使用蓝色、粉色、黄色、绿色等颜色进行搭配,打造出一个多彩的室内空间,使业主在每一个空间的感受都不一样。巧于设置室内绿化,创造自然、简朴、高雅的氛围。 因户型的特殊,电视背景墙由曲面背景墙的形式呈现,墙面上可以打造出一个隔断板,可以在上面放置上自己喜欢的照片与装饰品,下面采用电视柜的形成呈现,柜体内可收纳一些客厅的日常用品。 在客厅空余的墙体前,可多放置几个收纳功能强大的储物柜,可以将我们的日常生活用品有效地归纳起来。这样就可以使我们的客厅整洁如一,不会显得杂乱无章了。 客厅采用两人简易皮质蓝色沙发搭配上一款米白色懒人沙发,在空白的墙面上打造出一个内嵌式储物隔断,可以摆放一些业主自己收藏的蒙奇奇装饰品,作为一个展示柜来使用。 卧室整体为粉色系,在颜色上就营造出一种少女的感觉,粉色墙面涂刷、深棕色皮质床头靠背搭配上成套的粉色HelloKitty床品,这么少女的房间,进来都不想出去了。 次卧整体的装饰要跟主卧区分开来,次卧分为两部分组成,一部分为休息区域,一部分为办公区域,一个简单的办公岛台帮我们解决了办公这件事,这间房间即可以作为客房、也可以作为书房、次卧、休闲娱乐区。 开放式厨房就是通过对空间的合理运用,冲破视觉的限制,划分出多余的活动空间,从而达到空间变大。 将浴室柜放在卫生间的外面,将马桶以及淋浴房在里面,这样不仅能够提高使用效率,还可以做到干湿分离,避免滋生细菌。 淋浴房的造型丰富,色彩鲜艳,除了具有能够避免干湿分离的问题以及洗浴的功能外,本身还是一件很好的装饰品。 餐厅以卡座的形式呈现,既可以做到节省空间的问题,又可以增大储物功能,在卡座的上面打造出一组吊柜,用来放置一些我们经常不会用到的东西。 玄关处可以打造出一列隔板,放置一些装饰品在里面,作为装饰玄关的装饰品,这样玄关处就不会显得单调枯燥了,在摆放一个椅子,可以方便我们进出室内换鞋,作为换鞋凳来使用。

    访客留言