欢迎来到上海装潢网
咨询热线:400-118-8580
装修公司入驻
建材商入驻
下载APP
微信分享
首页
网站公告
装修预约
装修预约
工程招标
合同报价审核
监理服务
培训报名
空气检测
装修公司
资质查询
企业动态
装修团队
新闻中心
短视频
精英访谈
装修问答
装修投诉
投诉列表
投诉提交
企业名录
红黑榜单
我要监理
我要监理
工地播报
监理验收
下载中心
文档中心
报价下载
合同下载
验收标准
施工规范
逾期赔偿参照表
建材服务
建材商家
商品列表
上海腾龙设计装潢工程有限公司
非网络监督单位
质保金:
无质保金
口碑值:
75
全站排名:
第
位
区域:
浦东新区
地址:
德州路270号
电话:
400-118-8580
会员订单:
8单
浏览量:
30622
微信分享
在线预约
店铺首页
公司动态
企业证书
服务团队
经典案例
在建工地
优惠活动
联系我们
上海腾龙设计装潢工程有限公司
非网络监督单位
预约电话:
400-118-8580
在线:
2022-05-04
(3年前)
店铺首页
公司动态
企业证书
服务团队
经典案例
优惠活动
联系我们
预约装修
会员订单
8条
预约
预约提交成功
客服人员将会与您联系,请保持手机畅通
查询热线
400-118-8580
上海腾龙设计装潢工程有限公司
经典案例
九龙仓兰宫400平别墅项目装修-设计效果图
九龙仓兰宫400平别墅项目装修-设计效果图
冯利利
主任设计师
风格:混搭风格
布局:联排别墅
面积:400㎡
造价:120万元
位置: 上海 上海 黄浦区 九龙仓兰宫
案例说明
客厅 - 九龙仓兰宫别墅项目装修设计混搭风格设计,上海腾龙别墅设计作品,欢迎品鉴
客厅 - 九龙仓兰宫别墅项目装修设计混搭风格设计,上海腾龙别墅设计作品,欢迎品鉴
书房 - 九龙仓兰宫别墅项目装修设计混搭风格设计,上海腾龙别墅设计作品,欢迎品鉴
卧室 - 九龙仓兰宫别墅项目装修设计混搭风格设计,上海腾龙别墅设计作品,欢迎品鉴
卧室 - 九龙仓兰宫别墅项目装修设计混搭风格设计,上海腾龙别墅设计作品,欢迎品鉴
卧室 - 九龙仓兰宫别墅项目装修设计混搭风格设计,上海腾龙别墅设计作品,欢迎品鉴
卧室 - 九龙仓兰宫别墅项目装修设计混搭风格设计,上海腾龙别墅设计作品,欢迎品鉴
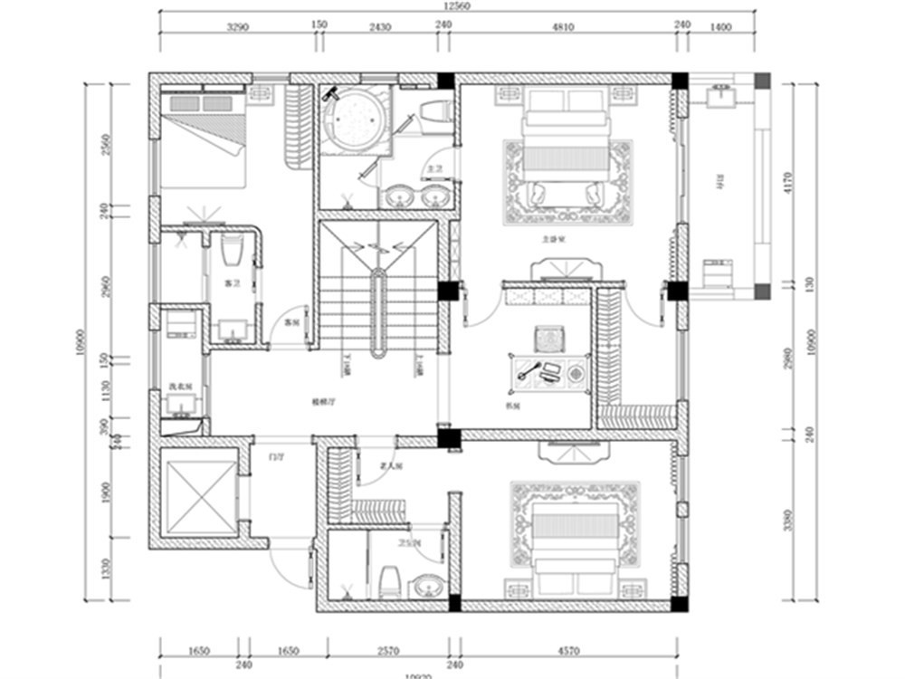
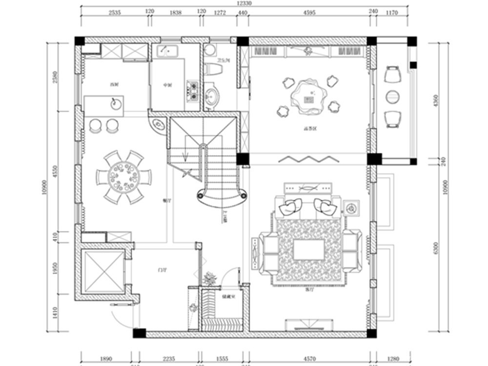
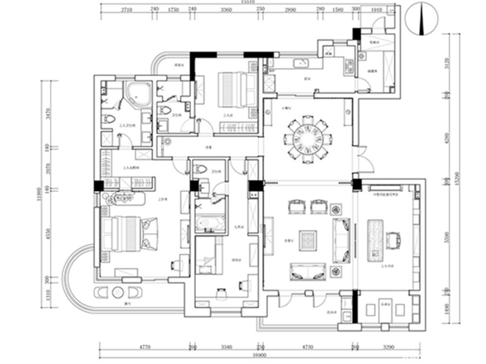
户型 - 九龙仓兰宫别墅项目装修设计混搭风格设计,上海腾龙别墅设计作品,欢迎品鉴
户型 - 九龙仓兰宫别墅项目装修设计混搭风格设计,上海腾龙别墅设计作品,欢迎品鉴
户型 - 九龙仓兰宫别墅项目装修设计混搭风格设计,上海腾龙别墅设计作品,欢迎品鉴
户型 - 九龙仓兰宫别墅项目装修设计混搭风格设计,上海腾龙别墅设计作品,欢迎品鉴
户型 - 九龙仓兰宫别墅项目装修设计混搭风格设计,上海腾龙别墅设计作品,欢迎品鉴
访客留言