欢迎来到上海装潢网
咨询热线:400-118-8580
装修公司入驻
建材商入驻
下载APP
微信分享
首页
网站公告
装修预约
装修预约
工程招标
合同报价审核
监理服务
培训报名
空气检测
装修公司
资质查询
企业动态
装修团队
新闻中心
短视频
精英访谈
装修问答
装修投诉
投诉列表
投诉提交
企业名录
红黑榜单
我要监理
我要监理
工地播报
监理验收
下载中心
文档中心
报价下载
合同下载
验收标准
施工规范
逾期赔偿参照表
建材服务
建材商家
商品列表
同济百年装饰(临港泥城店)
非网络监督单位
质保金:
无质保金
口碑值:
4970
全站排名:
第
位
区域:
浦东新区
地址:
鸿音路2955号
电话:
400-118-8580
浏览量:
5861
微信分享
在线预约
店铺首页
公司动态
企业证书
服务团队
经典案例
在建工地
优惠活动
联系我们
同济百年装饰(临港泥城店)
非网络监督单位
预约电话:
400-118-8580
在线:
2017-12-10
(5年前)
店铺首页
公司动态
企业证书
服务团队
经典案例
优惠活动
联系我们
预约装修
预约
预约提交成功
客服人员将会与您联系,请保持手机畅通
查询热线
400-118-8580
同济百年装饰(临港泥城店)
经典案例
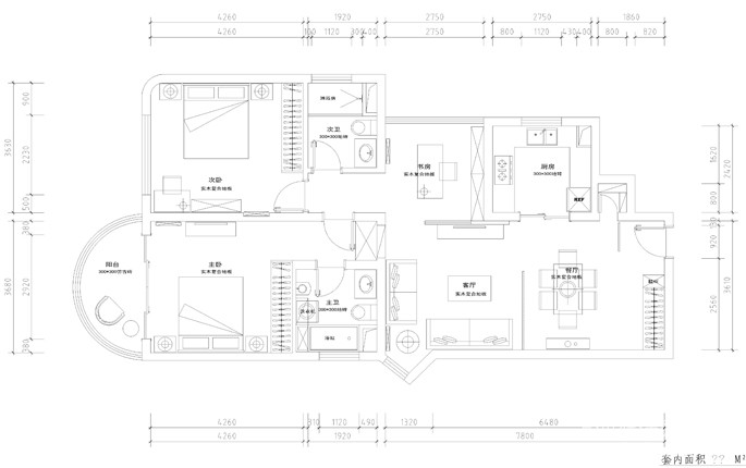
中式三房两厅-完工效果图
中式三房两厅-完工效果图
风格:中式风格
布局:三房
面积:150㎡
造价:13万元
位置: 上海 上海 黄浦区 浦东新区
案例说明
00ca92bf7d3c44c1bc41c644be7e47f8.jpg - 1
46e4cf56ac434aa493e19b2619862c62.jpg - 1
53c8391dcfa2412cbf91c59b71285783.jpg - 1
85919e4d74f44f1aa6dabcc9a2510388.jpg - 1
ad66fd2296e74b80b149f1f9f7455892.jpg - 1
ed3846629b344c5db071c0917a60b334.jpg - 1
访客留言