欢迎来到上海装潢网
咨询热线:400-118-8580
装修公司入驻
建材商入驻
下载APP
微信分享
首页
网站公告
装修预约
装修预约
工程招标
合同报价审核
监理服务
培训报名
空气检测
装修公司
资质查询
企业动态
装修团队
新闻中心
短视频
精英访谈
装修问答
装修投诉
投诉列表
投诉提交
企业名录
红黑榜单
我要监理
我要监理
工地播报
监理验收
下载中心
文档中心
报价下载
合同下载
验收标准
施工规范
逾期赔偿参照表
建材服务
建材商家
商品列表
上海聚通建筑装潢工程有限公司
网络监督单位
质保金:
无质保金
口碑值:
23704
全站排名:
第
位
区域:
浦东新区
地址:
上海13家门店可提供服务,电话预约安排。
电话:
400-118-8580
会员订单:
19单
浏览量:
20421
微信分享
在线预约
店铺首页
公司动态
企业证书
服务团队
经典案例
在建工地
优惠活动
联系我们
上海聚通建筑装潢工程有限公司
网络监督单位
预约电话:
400-118-8580
在线:
2023-08-10
(2年前)
店铺首页
公司动态
企业证书
服务团队
经典案例
优惠活动
联系我们
预约装修
会员订单
19条
预约
预约提交成功
客服人员将会与您联系,请保持手机畅通
查询热线
400-118-8580
上海聚通建筑装潢工程有限公司
经典案例
上海康城-完工效果图方案
上海康城-完工效果图方案
李芳
资深设计师
风格:现代风格
布局:小户型
面积:140㎡
造价:21万元
位置: 上海 上海 黄浦区 闵行区莘松路958弄
案例说明
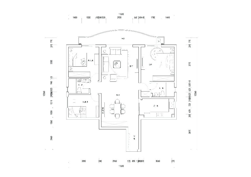
平面图.jpg - 房型图
客厅1.jpg - 相与枕藉乎舟中,不知东方之既白”,时空轮转,已然梦回东方。 本案遵从传统东方美学,即清静无为,返璞归真,顺应自然。在结构上,以布局变化为特点,结构对称,装饰精巧。在空间造型上,以简单的直线条表现中式的古朴大方。在色彩上,采用柔和的中性色彩,给人优雅温馨、自然脱俗的感觉。在材质上,运用壁纸、玻化砖等,将传统风韵与现代舒适感完美地融合在一起。
客厅2.jpg - 相与枕藉乎舟中,不知东方之既白”,时空轮转,已然梦回东方。 本案遵从传统东方美学,即清静无为,返璞归真,顺应自然。在结构上,以布局变化为特点,结构对称,装饰精巧。在空间造型上,以简单的直线条表现中式的古朴大方。在色彩上,采用柔和的中性色彩,给人优雅温馨、自然脱俗的感觉。在材质上,运用壁纸、玻化砖等,将传统风韵与现代舒适感完美地融合在一起。
卫生间.jpg - 相与枕藉乎舟中,不知东方之既白”,时空轮转,已然梦回东方。 本案遵从传统东方美学,即清静无为,返璞归真,顺应自然。在结构上,以布局变化为特点,结构对称,装饰精巧。在空间造型上,以简单的直线条表现中式的古朴大方。在色彩上,采用柔和的中性色彩,给人优雅温馨、自然脱俗的感觉。在材质上,运用壁纸、玻化砖等,将传统风韵与现代舒适感完美地融合在一起。
阳台.jpg - 相与枕藉乎舟中,不知东方之既白”,时空轮转,已然梦回东方。 本案遵从传统东方美学,即清静无为,返璞归真,顺应自然。在结构上,以布局变化为特点,结构对称,装饰精巧。在空间造型上,以简单的直线条表现中式的古朴大方。在色彩上,采用柔和的中性色彩,给人优雅温馨、自然脱俗的感觉。在材质上,运用壁纸、玻化砖等,将传统风韵与现代舒适感完美地融合在一起。
主卧.jpg - 相与枕藉乎舟中,不知东方之既白”,时空轮转,已然梦回东方。 本案遵从传统东方美学,即清静无为,返璞归真,顺应自然。在结构上,以布局变化为特点,结构对称,装饰精巧。在空间造型上,以简单的直线条表现中式的古朴大方。在色彩上,采用柔和的中性色彩,给人优雅温馨、自然脱俗的感觉。在材质上,运用壁纸、玻化砖等,将传统风韵与现代舒适感完美地融合在一起。
访客留言