欢迎来到上海装潢网
咨询热线:400-118-8580
装修公司入驻
建材商入驻
下载APP
微信分享
首页
网站公告
装修预约
装修预约
工程招标
合同报价审核
监理服务
培训报名
空气检测
装修公司
资质查询
企业动态
装修团队
新闻中心
短视频
精英访谈
装修问答
装修投诉
投诉列表
投诉提交
企业名录
红黑榜单
我要监理
我要监理
工地播报
监理验收
下载中心
文档中心
报价下载
合同下载
验收标准
施工规范
逾期赔偿参照表
建材服务
建材商家
商品列表
上海聚通建筑装潢工程有限公司
网络监督单位
质保金:
无质保金
口碑值:
23704
全站排名:
第
位
区域:
浦东新区
地址:
上海13家门店可提供服务,电话预约安排。
电话:
400-118-8580
会员订单:
19单
浏览量:
20425
微信分享
在线预约
店铺首页
公司动态
企业证书
服务团队
经典案例
在建工地
优惠活动
联系我们
上海聚通建筑装潢工程有限公司
网络监督单位
预约电话:
400-118-8580
在线:
2023-08-10
(2年前)
店铺首页
公司动态
企业证书
服务团队
经典案例
优惠活动
联系我们
预约装修
会员订单
19条
预约
预约提交成功
客服人员将会与您联系,请保持手机畅通
查询热线
400-118-8580
上海聚通建筑装潢工程有限公司
经典案例
金大元御珑公馆-既将开工中。
金大元御珑公馆-既将开工中。
朱弘毅
首席设计师
风格:欧式风格
布局:独栋别墅
面积:580㎡
造价:150万元
位置: 上海 上海 黄浦区 浦东唐丰路881弄
案例说明
00.jpg - 线条变化丰富,精益求精的细节处理,带给家人不尽的舒服触感。家具及灯饰都略显欧式特色并有一定的文化氛围。现代欧式的居室更多的是惬意和浪漫,和谐则是欧式风格的高境界
餐厅_1.jpg - 线条变化丰富,精益求精的细节处理,带给家人不尽的舒服触感。家具及灯饰都略显欧式特色并有一定的文化氛围。现代欧式的居室更多的是惬意和浪漫,和谐则是欧式风格的高境界
茶水间_1.jpg - 线条变化丰富,精益求精的细节处理,带给家人不尽的舒服触感。家具及灯饰都略显欧式特色并有一定的文化氛围。现代欧式的居室更多的是惬意和浪漫,和谐则是欧式风格的高境界
厨房_1.jpg - 线条变化丰富,精益求精的细节处理,带给家人不尽的舒服触感。家具及灯饰都略显欧式特色并有一定的文化氛围。现代欧式的居室更多的是惬意和浪漫,和谐则是欧式风格的高境界
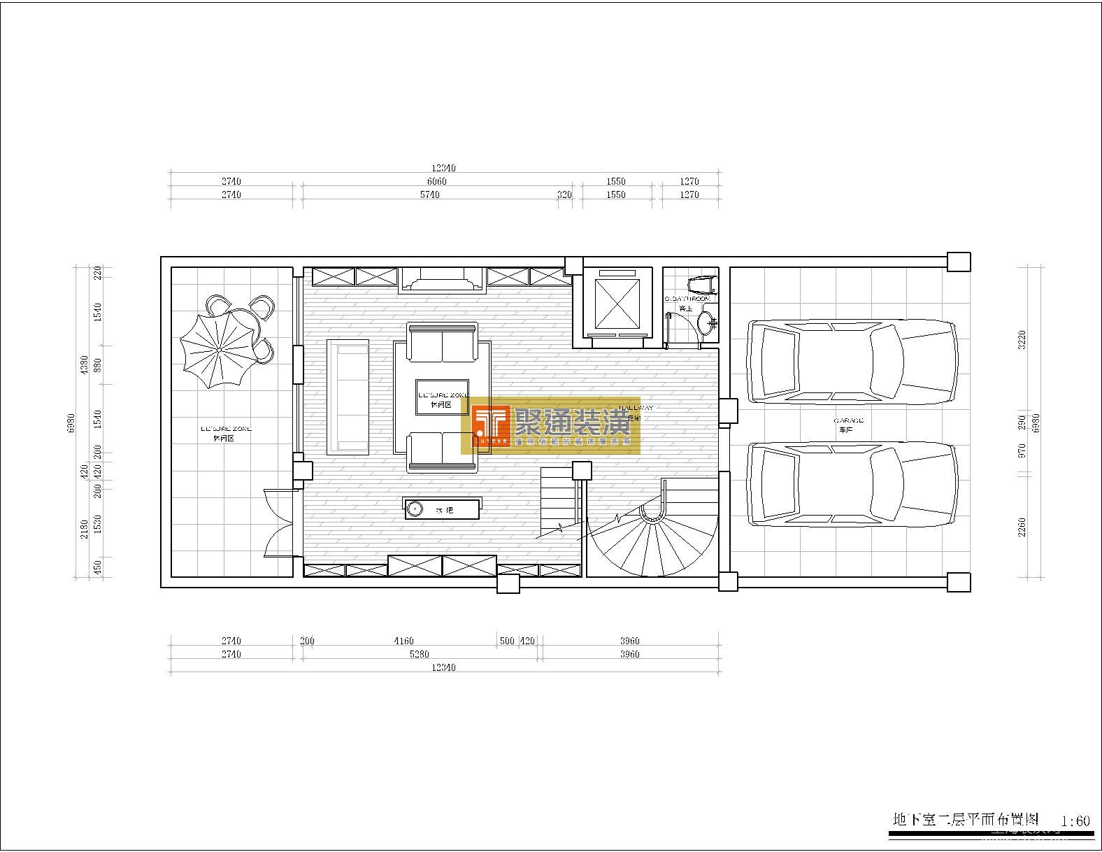
地下室_1.jpg - 线条变化丰富,精益求精的细节处理,带给家人不尽的舒服触感。家具及灯饰都略显欧式特色并有一定的文化氛围。现代欧式的居室更多的是惬意和浪漫,和谐则是欧式风格的高境界
地下室书房_1.jpg - 线条变化丰富,精益求精的细节处理,带给家人不尽的舒服触感。家具及灯饰都略显欧式特色并有一定的文化氛围。现代欧式的居室更多的是惬意和浪漫,和谐则是欧式风格的高境界
二楼次卫_1.jpg - 线条变化丰富,精益求精的细节处理,带给家人不尽的舒服触感。家具及灯饰都略显欧式特色并有一定的文化氛围。现代欧式的居室更多的是惬意和浪漫,和谐则是欧式风格的高境界
二楼次卧_1.jpg - 线条变化丰富,精益求精的细节处理,带给家人不尽的舒服触感。家具及灯饰都略显欧式特色并有一定的文化氛围。现代欧式的居室更多的是惬意和浪漫,和谐则是欧式风格的高境界
二楼老人房_1.jpg - 线条变化丰富,精益求精的细节处理,带给家人不尽的舒服触感。家具及灯饰都略显欧式特色并有一定的文化氛围。现代欧式的居室更多的是惬意和浪漫,和谐则是欧式风格的高境界
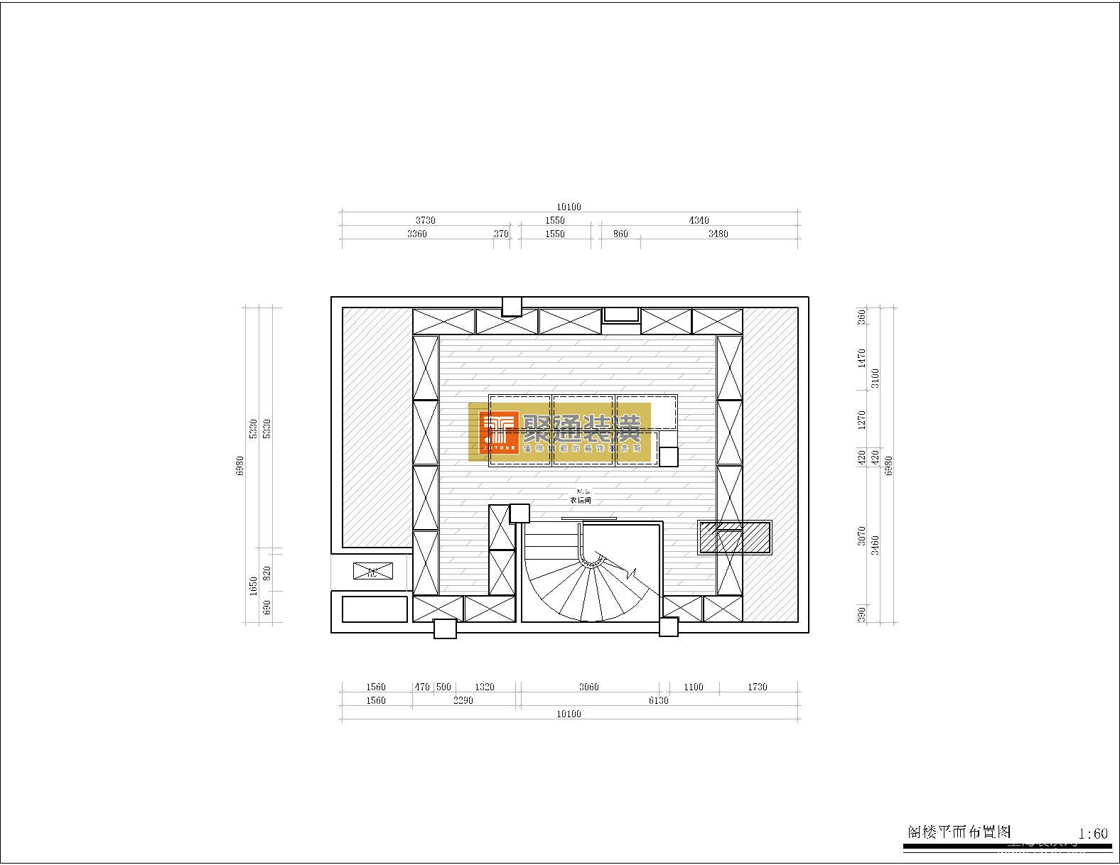
阁楼_1.jpg - 线条变化丰富,精益求精的细节处理,带给家人不尽的舒服触感。家具及灯饰都略显欧式特色并有一定的文化氛围。现代欧式的居室更多的是惬意和浪漫,和谐则是欧式风格的高境界
酒柜_1.jpg - 线条变化丰富,精益求精的细节处理,带给家人不尽的舒服触感。家具及灯饰都略显欧式特色并有一定的文化氛围。现代欧式的居室更多的是惬意和浪漫,和谐则是欧式风格的高境界
客厅_1.jpg - 线条变化丰富,精益求精的细节处理,带给家人不尽的舒服触感。家具及灯饰都略显欧式特色并有一定的文化氛围。现代欧式的居室更多的是惬意和浪漫,和谐则是欧式风格的高境界
门厅_1.jpg - 线条变化丰富,精益求精的细节处理,带给家人不尽的舒服触感。家具及灯饰都略显欧式特色并有一定的文化氛围。现代欧式的居室更多的是惬意和浪漫,和谐则是欧式风格的高境界
三楼次卧_1.jpg - 线条变化丰富,精益求精的细节处理,带给家人不尽的舒服触感。家具及灯饰都略显欧式特色并有一定的文化氛围。现代欧式的居室更多的是惬意和浪漫,和谐则是欧式风格的高境界
书房副本_1.jpg - 线条变化丰富,精益求精的细节处理,带给家人不尽的舒服触感。家具及灯饰都略显欧式特色并有一定的文化氛围。现代欧式的居室更多的是惬意和浪漫,和谐则是欧式风格的高境界
一楼酒窖_1.jpg - 线条变化丰富,精益求精的细节处理,带给家人不尽的舒服触感。家具及灯饰都略显欧式特色并有一定的文化氛围。现代欧式的居室更多的是惬意和浪漫,和谐则是欧式风格的高境界
主卫_1.jpg - 线条变化丰富,精益求精的细节处理,带给家人不尽的舒服触感。家具及灯饰都略显欧式特色并有一定的文化氛围。现代欧式的居室更多的是惬意和浪漫,和谐则是欧式风格的高境界
主卧_1.jpg - 线条变化丰富,精益求精的细节处理,带给家人不尽的舒服触感。家具及灯饰都略显欧式特色并有一定的文化氛围。现代欧式的居室更多的是惬意和浪漫,和谐则是欧式风格的高境界
1_1.jpg - 房型图
-1_1.jpg - 房型图
2_1.jpg - 房型图
-2_1.jpg - 房型图
3_1.jpg - 房型图
4_1.jpg - 房型图
访客留言